-
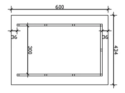
Fachwerk Satteldach-Carport
-
Massive Konstruktion aus Konstruktionsvollholz (KVH-Fichte)
-
Farblich behandelt in Nussbaum
-
Sparrendach mit Dachlatten
-
Offenes Ständerwerk 12 cm x 12 cm mit echten Zapfenverbindungen
Die farblich behandelten Teile des Bausatzes sind mit hochwertiger Lasur bzw. Farbe behandelt. Diese schützt das Holz vor Bläuebefall, vor Schäden durch UV-Licht, vermindert das Quell- und Schwundverhalten und läßt trotzdem die Holzstruktur durchscheinen. Die Teile werden im Werk 2x allseitig mit Lasur geflutet und der Überschuss anschließend abgebürstet.
Sie können sofort nach der Anlieferung mit dem Aufbau beginnen, das lästige Grundieren und Streichen entfällt. Jedem Bausatz liegt eine Reparaturmenge Farbe, bzw. Lasur bei, diese nutzen Sie, um Beschädigungen bzw. montagenotwendige Schnitt- und Schraubstellen mindestens 2x zu behandeln. Wenn Sie eine zusätzliche Veredelung der Oberfläche wünschen, schleifen Sie nach der Montage die sichtbaren Oberflächen leicht an und streichen diese mit hochwertiger Lasur bzw. Farbe.
Ablagespuren bei farblich allseitig behandelten Bauteilen sind technisch bedingt. Das Satteldach wird mit Dachlatten zur Eindeckung mit Dachziegeln geliefert. Die Dachziegel sind bauseits zu beschaffen. Zur Verankerung mit der Bodenschwelle mit dem Untergrund sind Dübel im Bausatz enthalten.























Reviews
There are no reviews yet.